sou fujimoto library
August 16th, 2010 
Danish firm ADEPT and Japanese architect Sou Fujimoto have won a competition to design a library for the Högskolan Dalarna university campus in Falun, Sweden.

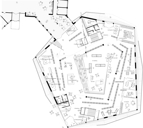
Called Dalarna Media Arena, the building will feature sloped floors that spiral around the interior.

It will be used by students and teachers at the university as well as the local community, and include a public plaza outside.


Completion is expected in 2013.

Here are some more details from ADEPT:
ADEPT WINS SWEDISH MEDIA LIBRARY COMPETITION WITH AMULTIFUNCTIONAL“SPIRAL OF KNOWLEDGE”
Danish ADEPT, Japanese SOU FUJIMOTO Architects and an advisory team consisting of Topotek1, Rambøll A/S and Bosch & Fjord win the competition for a new library in Falun, Sweden, with the project “Dalarna Media Arena”. The project, which consists of a 3000m2 library and an adjoining plaza, is a part of Dalarna University campus.

Dalarna Media Arena is a reinterpretation of the library – a multifunctional event- and knowledge center – targeting students and teachers as well as the local community. Dalarna Media Arena matches a new library culture, staging a wealth of opportunities for events and inspiration. The library and plaza at Högskolan Dalarna will be the city’s third space – a dynamic meeting point with activities for students, employees and visitors.

Click above for larger image
The library is organized as a ”spiral of knowledge”. The sloping terrain continues in a ramp through the building. Wrapping itself the ramp creates a spiral-shaped space – the heart of the building for information seeking and easy orientation. This organization of program creates various learning environments where students can take part in the vibrant life of the library as well as retreat into various study niches. The different sound levels and activities create a diverse and eventful library.

Click above for larger image
The library has its own spatial character in which library and multimedia functions unite and create synergy with the existing university. Wooden facades integrate the building in the surroundings, reflecting the local tradition of using wood as construction material.

Click above for larger image
Dalarna Media Plaza is created in addition to the library – together they form a new landmark for Hogskolan Dalarna. Through a simple reorganization the car park becomes a new surface with ‘islands’ of activities.

Click above for larger image
The programming of the Plaza is flexible and will be developed in the user process. The Plaza, which is a mix of recreational functions and furniture, serves as arrival area and hang-out space for users of Hogskolan, the library and visitors in the area.

Click above for larger image
This project will help to attract people in the neighborhood, thereby anchoring the library in the local community. In addition the ambition is to strengthen the collaboration between regional and international educational and research institutions.

Click above for larger image
With its public functions and activities Dalarna Media Library will become a dynamo in the area and an attraction for both local inhabitants and businesses. Activities in the café, exhibitions, lectures, continuing education, etc. will provide fertile ground for international exchange and interdisciplinary collaboration.

Click above for larger image
Dalarna Media Arena is designed by an international team consisting of ADEPT (DK) and Sou Fujimoto Architects (JP) in collaboration with Rambøll (DK), Topotek1 (DE) and Bosch & Fjord (DK). ADEPT and Sou Fujimoto Architects also joined forces for the Deichmanske Library competition in Oslo, Norway.

Click above for larger image
The jury minutes stated: “In conclusion it’s an exciting building rich on variety and with many possible meeting points integrated in a coherent environment. The proposal has solved the total program in an interesting, exciting and playful manner – inside as well as outside.”

Danish firm ADEPT and Japanese architect Sou Fujimoto have won a competition to design a library for the Högskolan Dalarna university campus in Falun, Sweden.
Called Dalarna Media Arena, the building will feature sloped floors that spiral around the interior.
It will be used by students and teachers at the university as well as the local community, and include a public plaza outside.
Completion is expected in 2013.
Here are some more details from ADEPT:
ADEPT WINS SWEDISH MEDIA LIBRARY COMPETITION WITH AMULTIFUNCTIONAL“SPIRAL OF KNOWLEDGE”
Danish ADEPT, Japanese SOU FUJIMOTO Architects and an advisory team consisting of Topotek1, Rambøll A/S and Bosch & Fjord win the competition for a new library in Falun, Sweden, with the project “Dalarna Media Arena”. The project, which consists of a 3000m2 library and an adjoining plaza, is a part of Dalarna University campus.
Dalarna Media Arena is a reinterpretation of the library – a multifunctional event- and knowledge center – targeting students and teachers as well as the local community. Dalarna Media Arena matches a new library culture, staging a wealth of opportunities for events and inspiration. The library and plaza at Högskolan Dalarna will be the city’s third space – a dynamic meeting point with activities for students, employees and visitors.
Click above for larger image
The library is organized as a ”spiral of knowledge”. The sloping terrain continues in a ramp through the building. Wrapping itself the ramp creates a spiral-shaped space – the heart of the building for information seeking and easy orientation. This organization of program creates various learning environments where students can take part in the vibrant life of the library as well as retreat into various study niches. The different sound levels and activities create a diverse and eventful library.
Click above for larger image
The library has its own spatial character in which library and multimedia functions unite and create synergy with the existing university. Wooden facades integrate the building in the surroundings, reflecting the local tradition of using wood as construction material.
Click above for larger image
Dalarna Media Plaza is created in addition to the library – together they form a new landmark for Hogskolan Dalarna. Through a simple reorganization the car park becomes a new surface with ‘islands’ of activities.
Click above for larger image
The programming of the Plaza is flexible and will be developed in the user process. The Plaza, which is a mix of recreational functions and furniture, serves as arrival area and hang-out space for users of Hogskolan, the library and visitors in the area.
Click above for larger image
This project will help to attract people in the neighborhood, thereby anchoring the library in the local community. In addition the ambition is to strengthen the collaboration between regional and international educational and research institutions.
Click above for larger image
With its public functions and activities Dalarna Media Library will become a dynamo in the area and an attraction for both local inhabitants and businesses. Activities in the café, exhibitions, lectures, continuing education, etc. will provide fertile ground for international exchange and interdisciplinary collaboration.
Click above for larger image
Dalarna Media Arena is designed by an international team consisting of ADEPT (DK) and Sou Fujimoto Architects (JP) in collaboration with Rambøll (DK), Topotek1 (DE) and Bosch & Fjord (DK). ADEPT and Sou Fujimoto Architects also joined forces for the Deichmanske Library competition in Oslo, Norway.
Click above for larger image
The jury minutes stated: “In conclusion it’s an exciting building rich on variety and with many possible meeting points integrated in a coherent environment. The proposal has solved the total program in an interesting, exciting and playful manner – inside as well as outside.”

Comments
Post a Comment